
手自一體百葉窗簡介
手自一體百葉窗***是用旋鈕或電機來控制百葉窗的開啟和關閉。手電一體百葉窗的旋鈕適用于所有的活動百葉窗,使用簡單方便,安全穩定。其彌補了電動百葉窗由于某種原因不能安裝的所帶來的遺憾。它集固定百葉窗和電動百葉窗兩者的優點,取長補短,特別適用于現代家庭對通風、遮陽、防盜、美觀等各方面的要求。
Introduction
Manual &Electric integrated louvre are controlled by both manual rotary knob and electric actuators. They are widely used in ventilation, sunshade &security ,etc. You can open and close the louvre by manual instead of electric window actuator when it is power shortage in emergency.
特點
1.手動百葉的葉片可以水平或者垂直安裝。
2.葉片長度和寬度可以根據客戶要求定制,滿足客戶的不同要求。
3.葉片開啟角度0-105度自由調節。客戶可以根據太陽照射的時間和自己的需要,隨時更改葉片角度。
Features
1.Blades can be installed vertical, crosswise position.
2.The length and width of blades customized by customer.
3.0-105° movement design, they can meet different requests of building lighting and sunshade.
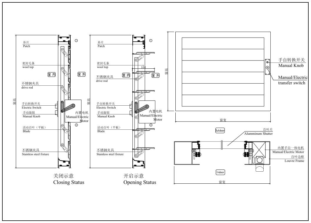
產品設計圖
應用